
企業名稱:山東世紀海角社区安卓版下载環保科技有限公司
聯係人:張經理
電話:13964039111
手機:15020001818
郵箱:15020001818@163.com
網址:www.jcxzr.com
地址:濟南市長清區南園經濟開發區平房村東


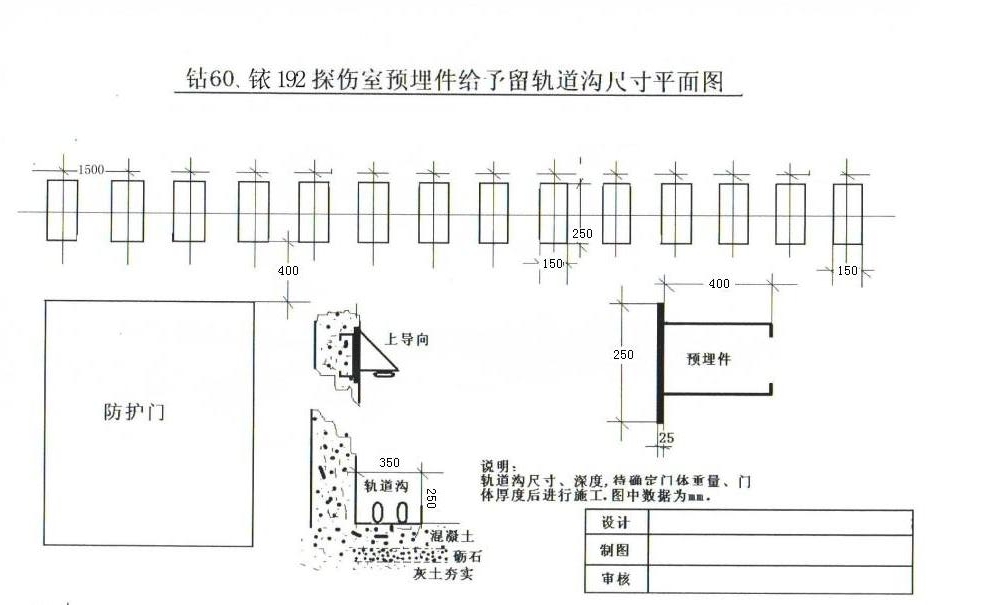
濟南海角社区安卓版下载輻射防護器材有限公司專注從事射線防護工程的設計施工,海角社区平台APP窗、防護衣係列、防護海角社区APP免费版、防護海角精产国品一二三区别、防護塗料等防護產品的生產和工程。 濟南海角社区安卓版下载輻射防護器材有限公司承包屏蔽防護工程有:衛生醫了方麵:X光手術室、CT、DSA、加速區、射波刀、核醫學(同位素實驗室)、磁共振等機房的屏蔽防護工程的設計、施工。工礦企業方麵:探傷機房、X光射線機房、大型電動移門等工程的設計、施工。 濟南海角社区安卓版下载輻射防護器材有限公司本著“質量保證、信譽至上”的企業宗旨,多年來在射線防護領域勇於探索,追求創新,不斷完善自我,始終堅持以誠信為本,以科技創新求發展,以品質贏得客戶的信賴。